Domy
Ogłoszeń: 1089
DOM DEWELOPERSKI NA SPRZEDAŻ – SŁODKÓW k. TURKU
IP: 89.234.207.170Wyświetleń: 48
cena: 599 000 PLN, typ: sprzedaż, pokój/pokoi: 3, region: Turek
DOM DEWELOPERSKI NA SPRZEDAŻ – SŁODKÓW k. TURKU
Lokalizacja: Słodków, gmina Turek
Cena: 599 000 zł
Powierzchnia całkowita: 163,74 m²
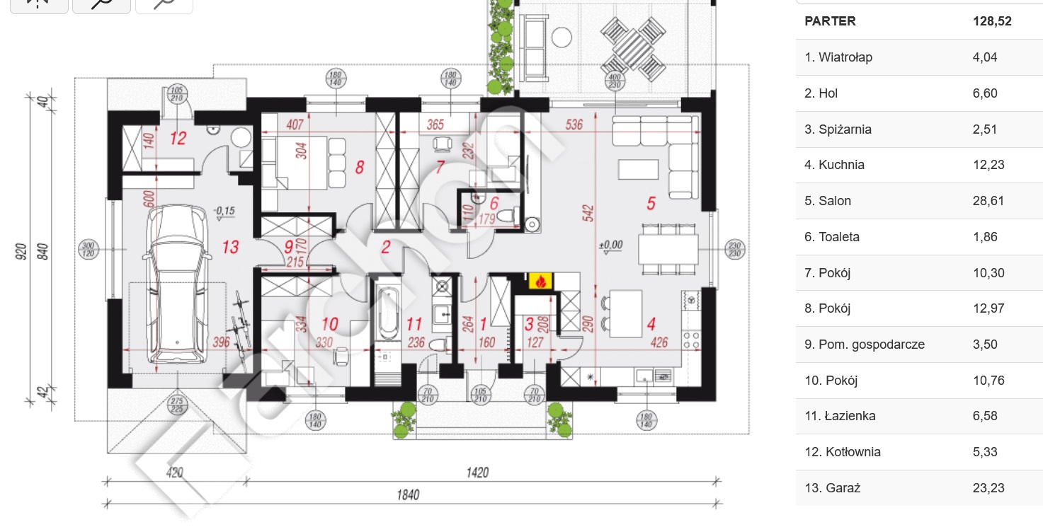
Powierzchnia użytkowa: 128,52 m²
Powierzchnia działki: 1664 m²
Liczba pokoi: 3
Łazienka + WC
Garaż w bryle budynku
Rok budowy: 2024
Stan: deweloperski (do wykończenia)
Przestronny, nowoczesny dom położony w spokojnej i zielonej okolicy – Słodków k. Turku.
Idealny dla rodziny, która marzy o nowym domu z dużą działką i możliwością urządzenia wnętrza według własnych potrzeb.
Dom wybudowany według projektu „Dom w Kostrzewach 6”
Przemyślany układ pomieszczeń:
salon z aneksem kuchennym i dużymi oknami HS,
3 oddzielne sypialnie,
łazienka + WC,
hall, wiatrołap,
spiżarnia (w projekcie zamieniona na WC),
garaż i kotłownia.
Duże, nowoczesne przeszklenia w salonie wprowadzają mnóstwo naturalnego światła i podkreślają nowoczesny charakter budynku.
Standard wykonania:
technologia tradycyjna (cegła),
ocieplenie styropianem 20 cm,
strop betonowy,
tynki gipsowe,
wykonana instalacja elektryczna,
brak rozprowadzenia ogrzewania podłogowego.
Media:
woda – w drodze,
prąd – skrzynka elektryczna będzie do końca roku,
brak szamba (do wykonania we własnym zakresie).
Działka o powierzchni 16,64 ar daje wiele możliwości zagospodarowania – ogród, plac zabaw, taras czy miejsce na rekreację z rodziną.
Cicha okolica, z dobrym dojazdem do Turku – idealne miejsce do zamieszkania.
Zadzwoń i umów się na prezentację:
Ilona – 603 418 067
Lokalizacja: Słodków, gmina Turek
Cena: 599 000 zł
Powierzchnia całkowita: 163,74 m²
Powierzchnia użytkowa: 128,52 m²
Powierzchnia działki: 1664 m²
Liczba pokoi: 3
Łazienka + WC
Garaż w bryle budynku
Rok budowy: 2024
Stan: deweloperski (do wykończenia)
Przestronny, nowoczesny dom położony w spokojnej i zielonej okolicy – Słodków k. Turku.
Idealny dla rodziny, która marzy o nowym domu z dużą działką i możliwością urządzenia wnętrza według własnych potrzeb.
Dom wybudowany według projektu „Dom w Kostrzewach 6”
Przemyślany układ pomieszczeń:
salon z aneksem kuchennym i dużymi oknami HS,
3 oddzielne sypialnie,
łazienka + WC,
hall, wiatrołap,
spiżarnia (w projekcie zamieniona na WC),
garaż i kotłownia.
Duże, nowoczesne przeszklenia w salonie wprowadzają mnóstwo naturalnego światła i podkreślają nowoczesny charakter budynku.
Standard wykonania:
technologia tradycyjna (cegła),
ocieplenie styropianem 20 cm,
strop betonowy,
tynki gipsowe,
wykonana instalacja elektryczna,
brak rozprowadzenia ogrzewania podłogowego.
Media:
woda – w drodze,
prąd – skrzynka elektryczna będzie do końca roku,
brak szamba (do wykonania we własnym zakresie).
Działka o powierzchni 16,64 ar daje wiele możliwości zagospodarowania – ogród, plac zabaw, taras czy miejsce na rekreację z rodziną.
Cicha okolica, z dobrym dojazdem do Turku – idealne miejsce do zamieszkania.
Zadzwoń i umów się na prezentację:
Ilona – 603 418 067
Galeria
Dane kontaktowe
Ilona Zaroda
603418067
Turek
Formularz kontaktowy
Inne ogłoszenia z tej kategorii
- Dom jednorodzinny, Kazimierz Bisku ...
- Dom jednorodzinny na sprzedaż, Węg ...
- Dom letniskowy w bliskości jeziora ...
- 535 tys - Żychlin dwuspadowy 89m2
- 605 tys- Brzeżno 110 m Złota Góra ...
- 493 tys -Brzeżno 74m Złota Góra g ...
- 535 tys -Brzeżno 88m Złota Góra ga ...
- 535 tys -Brzeżno 91 Złota Góra ga ...
- DOM Koło - Kazimierza Wielkiego 35 ...
- 457 tys -Brzeżno 67m Złota Góra ga ...













