Mieszkania
Ogłoszeń: 844
Mieszkania Deweloperskie –Kazimierz Biskupi
IP: 37.47.179.239Wyświetleń: 193
cena: 296 935 PLN, typ: sprzedaż, pokój/pokoi: 2, region: Konin
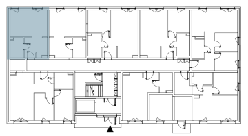
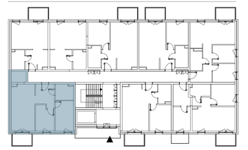
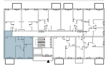
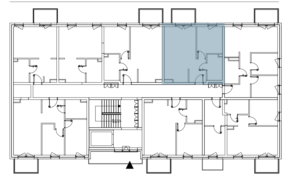
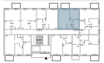
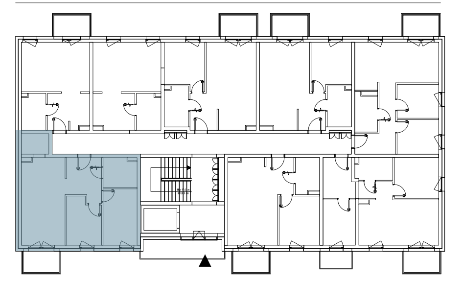
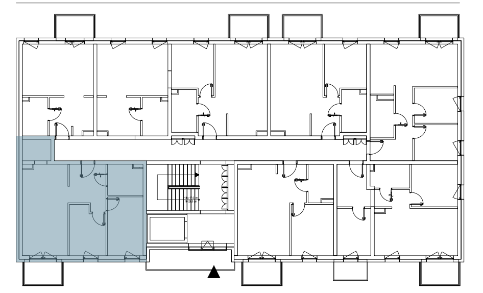
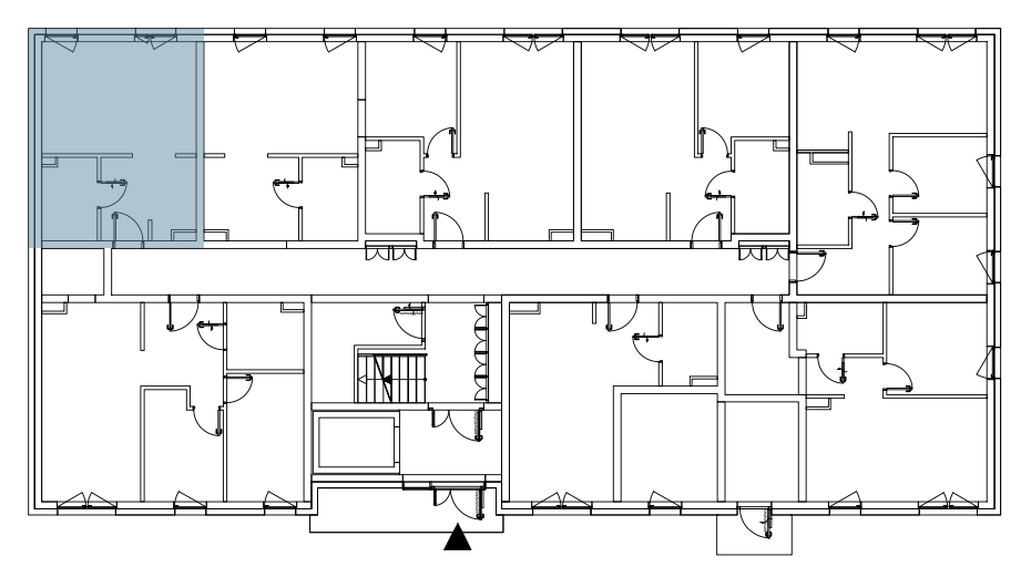
Marzysz o idealnym miejscu do życia, które łączy komfort nowoczesności z urokiem natury? Z radością informujemy o rozpoczęciu rezerwacji mieszkań w nowej inwestycji deweloperskiej w malowniczym Kazimierzu Biskupim! Nasz budynek mieszkalny wielorodzinny położony jest w spokojnej części miejscowości, tuż obok urokliwych lasów. Oferujemy mieszkania o zróżnicowanej powierzchni, zaprojektowane z myślą o Twoich potrzebach. To idealne połączenie wyjątkowego designu i nowoczesnych rozwiązań technologicznych. W okolicy znajdziesz wszystko, czego potrzebujesz na co dzień - od różnorodnych sklepów, przez pocztę i aptekę, aż po liczne placówki edukacyjne. A wszystko to w promieniu zaledwie kilkuset metrów! Dodatkowe udogodnienia? Proszę bardzo! Mieszkania z windami, miejscami parkingowymi oraz komórkami lokatorskimi dla pierwszych kupujących. ECO budownictwo z nowoczesną pompą ciepła zadba o niskie koszty utrzymania i Twój komfort. Lokalizacja to kolejny atut - bliskość klasztoru, placu zabaw, zajezdni autobusowej, poradni lekarskiej oraz szkoły podstawowej sprawia, że wszystko masz pod ręką! Promocyjna cena 6990 zł za m² dla pierwszych mieszkań - oferta ograniczona czasowo i do wyczerpania zapasów! Dodatkowo, dla naszych pierwszych klientów: komórki lokatorskie w budynku z 50% bonifikatą! Pozostałe komórki lokatorskie będą dostępne na zewnątrz. Dodatkowo istnieje możliwość zakupu w pełni wykończonego i gotowego pod wynajem lub do zamieszkania mieszkania! Idealna propozycja dla tych, którzy cenią sobie komfort i wygodę. Nie czekaj! Zainwestuj w przyszłość i komfort swojego życia. Skontaktuj się z nami już dziś i zarezerwuj swoje wymarzone mieszkanie!
Galeria
Dane kontaktowe
PI 698658907
698658907
Kazimierz Biskupi
Konin
Formularz kontaktowy
Inne ogłoszenia z tej kategorii
- DOM Z POMPĄ CIEPŁA BEZ CZYNSZU W C ...
- Mieszkanie 33m2, parter z balkonem
- Mieszkanie w Koninie - parter
- Mieszkanie 46m2 z balkonem Konin
- Mieszkanie 3 pokoje Konin - Chorzeń
- Mieszkanie 2 pokoje centrum Konina
- Mieszkanie w Koninie - centrum
- Mieszkanie w centrum Konina z balkonem
- Mieszkanie - parter Konin
- Sprzedam mieszkanie na parterze po ...














