Mieszkania
Ogłoszeń: 767
Mieszkania Deweloperskie –Kazimierz Biskupi
IP: 37.47.143.50Wyświetleń: 183
cena: 296 935 PLN, typ: sprzedaż, pokój/pokoi: 2, region: Konin
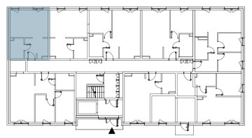
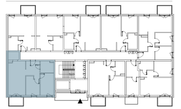
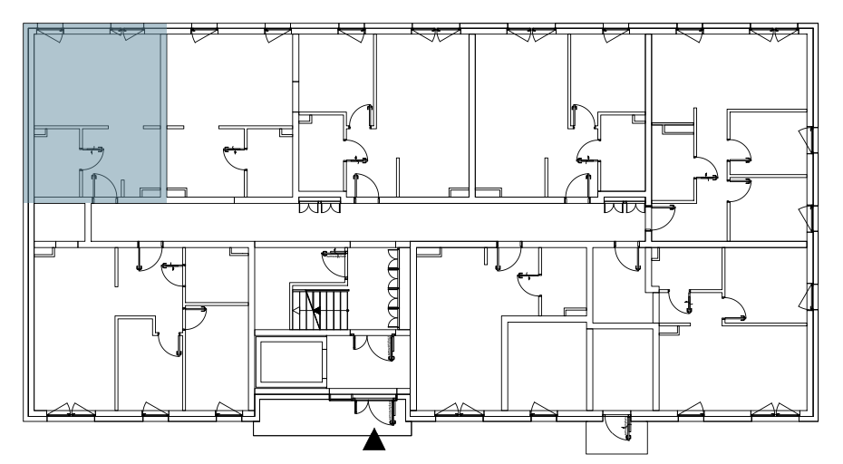
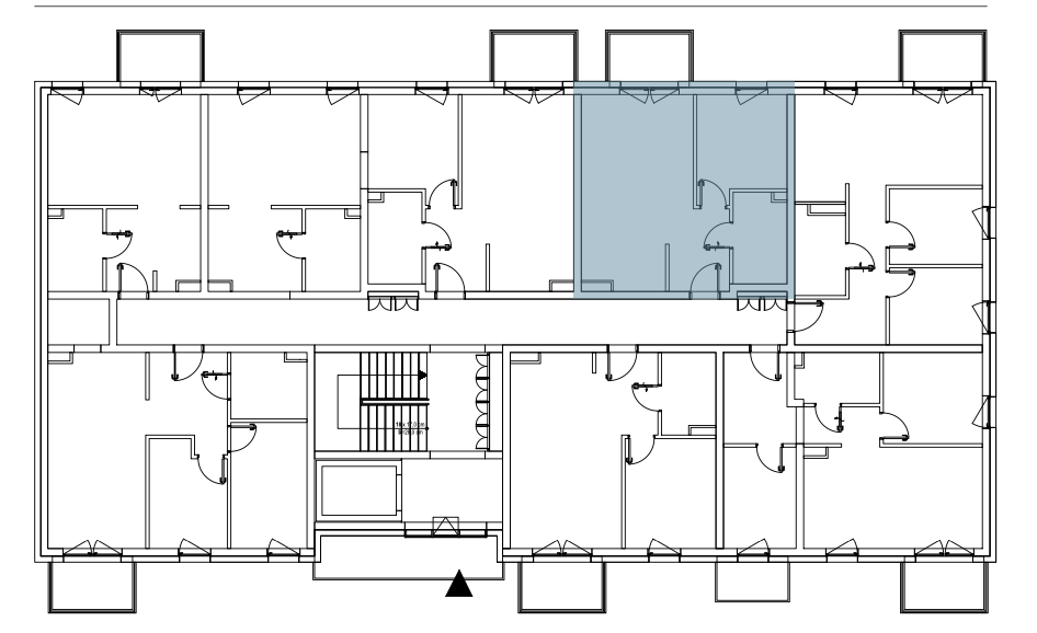
Marzysz o idealnym miejscu do życia, które łączy komfort nowoczesności z urokiem natury? Z radością informujemy o rozpoczęciu rezerwacji mieszkań w nowej inwestycji deweloperskiej w malowniczym Kazimierzu Biskupim! Nasz budynek mieszkalny wielorodzinny położony jest w spokojnej części miejscowości, tuż obok urokliwych lasów. Oferujemy mieszkania o zróżnicowanej powierzchni, zaprojektowane z myślą o Twoich potrzebach. To idealne połączenie wyjątkowego designu i nowoczesnych rozwiązań technologicznych. W okolicy znajdziesz wszystko, czego potrzebujesz na co dzień - od różnorodnych sklepów, przez pocztę i aptekę, aż po liczne placówki edukacyjne. A wszystko to w promieniu zaledwie kilkuset metrów! Dodatkowe udogodnienia? Proszę bardzo! Mieszkania z windami, miejscami parkingowymi oraz komórkami lokatorskimi dla pierwszych kupujących. ECO budownictwo z nowoczesną pompą ciepła zadba o niskie koszty utrzymania i Twój komfort. Lokalizacja to kolejny atut - bliskość klasztoru, placu zabaw, zajezdni autobusowej, poradni lekarskiej oraz szkoły podstawowej sprawia, że wszystko masz pod ręką! Promocyjna cena 6990 zł za m² dla pierwszych mieszkań - oferta ograniczona czasowo i do wyczerpania zapasów! Dodatkowo, dla naszych pierwszych klientów: komórki lokatorskie w budynku z 50% bonifikatą! Pozostałe komórki lokatorskie będą dostępne na zewnątrz. Dodatkowo istnieje możliwość zakupu w pełni wykończonego i gotowego pod wynajem lub do zamieszkania mieszkania! Idealna propozycja dla tych, którzy cenią sobie komfort i wygodę. Nie czekaj! Zainwestuj w przyszłość i komfort swojego życia. Skontaktuj się z nami już dziś i zarezerwuj swoje wymarzone mieszkanie!
Galeria
Dane kontaktowe
PI 698658907
698658907
Kazimierz Biskupi
Konin
Formularz kontaktowy
Inne ogłoszenia z tej kategorii
- 3 pok. mieszkanie po gruntownym re ...
- Sprzedam 3-pokoje 66,44m Osiedle D ...
- Mieszkanie do wynajęcia
- Sprzedam mieszkanie ul.Berylowa 66m
- Sprzedam mieszkanie 3-pokojowe, Za ...
- Mieszkanie 46m2 z balkonem Konin
- Mieszkanie centrum Konina
- Mieszkanie 51m2 , Konin ul. Energetyka
- Mieszkanie Ip. Konin Ul. Wyszyńskiego
- KUPIĘ MIESZKANIE














