Domy
Ogłoszeń: 1105
Nowoczesny dom, duża działka, 2 stanowiskowy garaż -Janowice
IP: 83.17.57.201Wyświetleń: 74
cena: 1 300 000 PLN, typ: sprzedaż, pokój/pokoi: 6, region: Konin
Zapraszam do zapoznania się z ofertą sprzedaży nieruchomości gruntowej zabudowanej, zlokalizowanej w miejscowości Janowice przy ul. Brylantowej w gminie Stare Miasto, w odległości około 9 km (15 minut samochodem) od centrum Konina. Nieruchomość położona z dala od miejskiego zgiełku, w spokojnej miejscowości w sąsiedztwie nowo powstałych i istniejących budynków mieszkalnych, terenów niezabudowanych, łąk i pól uprawnych. Działka o powierzchni 2385 m2, na której posadowiony jest nowoczesny, wolnostojący, parterowy z poddaszem użytkowym budynek mieszkalny o powierzchni użytkowej 152.66 m2 oraz budynek gospodarczo-garażowy z lokalem mieszkalnym na poddaszu o łącznej powierzchni użytkowej tego budynku 72 m2. Budynek mieszkalny oddany do użytku w 2020 roku, budowany w technologii tradycyjnej; mury wykonane z cegły czerwonej Porotherm, ocieplone 20 cm styropianem, otynkowane, fundament obłożony płytką klinkierową. Dach konstrukcji drewnianej, ocieplony wełną mineralną, kryty dachówką ceramiczną, podbitka dachu PCV. Stolarka okienna PCV w kolorze orzech, parapety zewnętrzne granitowe, zamontowane rolety zewnętrzne sterowane elektrycznie.
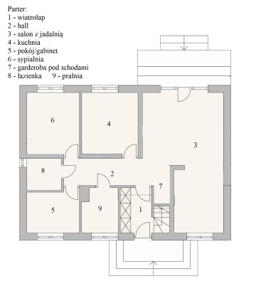
Wnętrze domu stanowią dwie kondygnacje. Na przestrzeni parteru znajdują się: wiatrołap 4.45m2, hall 8.70m2, salon połączony z jadalnią 34.82m2 i wyjściem na zadaszony taras, odrębna kuchnia 11.16m2, pokój (gabinet) 7.18m2, sypialnia 10.47m2, garderoba „pod schodami” 1.7m2, łazienka 3.56m2, pralnia 4.96m2-łączna powierzchnia 87.10m2. Przestrzeń poddasza stanowią 2 pokoje po około 10m2 każdy, 1 pokój 22m2, garderoba, łazienka i hall-łączna powierzchnia użytkowa to 65.56m2.
Dodatkową przestrzeń na gorące dni i ciepłe wieczory stanowi taras, urządzony w przemyślany wizualnie i technicznie sposób. Konstrukcja tarasu drewniana, dach wykonany z płyty poliwęglanowej, rolety osłaniające od niekorzystnych warunków atmosferycznych, podłoże wykostkowane.
Wnętrze domu stanowią dwie kondygnacje. Na przestrzeni parteru znajdują się: wiatrołap 4.45m2, hall 8.70m2, salon połączony z jadalnią 34.82m2 i wyjściem na zadaszony taras, odrębna kuchnia 11.16m2, pokój (gabinet) 7.18m2, sypialnia 10.47m2, garderoba „pod schodami” 1.7m2, łazienka 3.56m2, pralnia 4.96m2-łączna powierzchnia 87.10m2. Przestrzeń poddasza stanowią 2 pokoje po około 10m2 każdy, 1 pokój 22m2, garderoba, łazienka i hall-łączna powierzchnia użytkowa to 65.56m2.
Dodatkową przestrzeń na gorące dni i ciepłe wieczory stanowi taras, urządzony w przemyślany wizualnie i technicznie sposób. Konstrukcja tarasu drewniana, dach wykonany z płyty poliwęglanowej, rolety osłaniające od niekorzystnych warunków atmosferycznych, podłoże wykostkowane.
Galeria
Dane kontaktowe
INVICUS NIERUCHOMOŚCI Hubert Majchrzak
797017799
Chopina 23c
Konin
Konin
Formularz kontaktowy
Inne ogłoszenia z tej kategorii
- Na sprzedaż nowo wybudowany dom
- Dom parterowy Branno gm. Rzgów + w ...
- Dom jednorodzinny Modła Królewska ...
- Domy jednorodzinne Modła Królewska
- Dom na sprzedaż gm. Kazimierz Biskupi
- Dom jednorodzinny, Kazimierz Bisku ...
- Dom jednorodzinny na sprzedaż, Węg ...
- Dom letniskowy w bliskości jeziora ...
- 535 tys - Żychlin dwuspadowy 89m2
- 605 tys- Brzeżno 110 m Złota Góra ...














