Mieszkania
Ogłoszeń: 785
Mieszkanie na sprzedaż w Koninie, 11 Listopada - OKAZJA!
IP: 83.25.198.197Wyświetleń: 224
cena: 239 000 PLN, typ: sprzedaż, pokój/pokoi: 2, piętro/pięter: 2, region: Konin
Przedstawiamy Państwu przytulne mieszkanie o powierzchni 42,16 m², usytuowane na II piętrze w doskonałej lokalizacji przy ul. 11 Listopada 22 w Koninie.
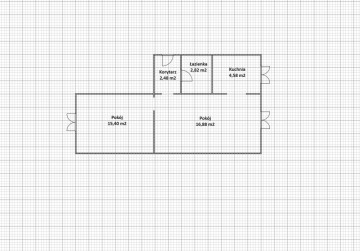
Lokal składa się z:
pokoju dziennego (15,40 m²)
sypialni (16,88 m²)
kuchni (4,58 m²)
łazienki (2,82 m²)
korytarza (2,48 m²)
Mieszkanie jest wyposażone, gotowe do wprowadzenia – idealne zarówno dla pary, rodziny, jak i pod inwestycję.
Wirtualny spacer po lokalu:
https://www.abanieruchomosci.pl/Konin,%20 11%20Listopada%2022.62/index.htm
Atuty lokalizacji:
ścisłe centrum Konina,
w pobliżu dworzec kolejowy i komunikacja miejska,
sklepy, markety i centra handlowe w zasięgu ręki,
szybki dostęp do najważniejszych instytucji i punktów usługowych.
Budynek:
Blok z lat 90-tych, 5-kondygnacyjny, ocieplony i otynkowany. Wejście zabezpieczone domofonem, drzwi antywłamaniowe.
Standard wykończenia:
okna PCV z roletami wewnętrznymi,
w pokojach i korytarzu panele, w kuchni i łazience terakota,
kuchnia w zabudowie,
łazienka z wanną, glazura,
instalacja elektryczna aluminiowa.
Media i ogrzewanie:
ogrzewanie miejskie (grzejniki żeliwne),
pełne uzbrojenie: woda, kanalizacja, energia, domofon, telefon.
Czynsz: ok. 386 zł (na osobę)
Cena za m²: 5 669 zł/m²
Forma własności: pełna własność
Dojazd: drogą asfaltową (ul. 11 Listopada).
Lokal składa się z:
pokoju dziennego (15,40 m²)
sypialni (16,88 m²)
kuchni (4,58 m²)
łazienki (2,82 m²)
korytarza (2,48 m²)
Mieszkanie jest wyposażone, gotowe do wprowadzenia – idealne zarówno dla pary, rodziny, jak i pod inwestycję.
Wirtualny spacer po lokalu:
https://www.abanieruchomosci.pl/Konin,%20 11%20Listopada%2022.62/index.htm
Atuty lokalizacji:
ścisłe centrum Konina,
w pobliżu dworzec kolejowy i komunikacja miejska,
sklepy, markety i centra handlowe w zasięgu ręki,
szybki dostęp do najważniejszych instytucji i punktów usługowych.
Budynek:
Blok z lat 90-tych, 5-kondygnacyjny, ocieplony i otynkowany. Wejście zabezpieczone domofonem, drzwi antywłamaniowe.
Standard wykończenia:
okna PCV z roletami wewnętrznymi,
w pokojach i korytarzu panele, w kuchni i łazience terakota,
kuchnia w zabudowie,
łazienka z wanną, glazura,
instalacja elektryczna aluminiowa.
Media i ogrzewanie:
ogrzewanie miejskie (grzejniki żeliwne),
pełne uzbrojenie: woda, kanalizacja, energia, domofon, telefon.
Czynsz: ok. 386 zł (na osobę)
Cena za m²: 5 669 zł/m²
Forma własności: pełna własność
Dojazd: drogą asfaltową (ul. 11 Listopada).
Galeria
Dane kontaktowe
Waldemar Świnka
605430225
Noskowskiego 1A
Konin
Konin
Formularz kontaktowy
Inne ogłoszenia z tej kategorii
- Mieszkanie Konin Centrum 3 pokoje ...
- 3pokoje z dużym ogródkiem - inwest ...
- 3 pokoje z poddaszem/parking - mie ...
- 3pokojowe mieszkanie z ogródkiem j ...
- 4 pokoje z ogrodem/ m.parkingowe/ ...
- 4 pokoje z poddaszem / parking / m ...
- Mieszkanie 3 pokojowe/ dwa balkony ...
- Sprzedam mieszkanie ul.Berylowa 66m
- 3 pok. mieszkanie po gruntownym re ...
- Sprzedam 3-pokoje 66,44m Osiedle D ...





