Mieszkania
Ogłoszeń: 775
Mieszkania Deweloperskie –Kazimierz Biskupi
IP: 37.47.157.60Wyświetleń: 29
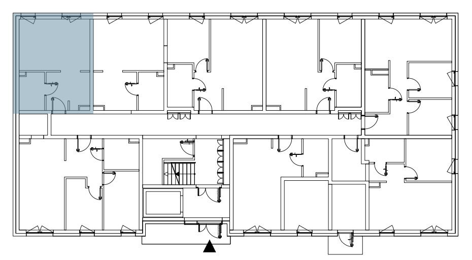
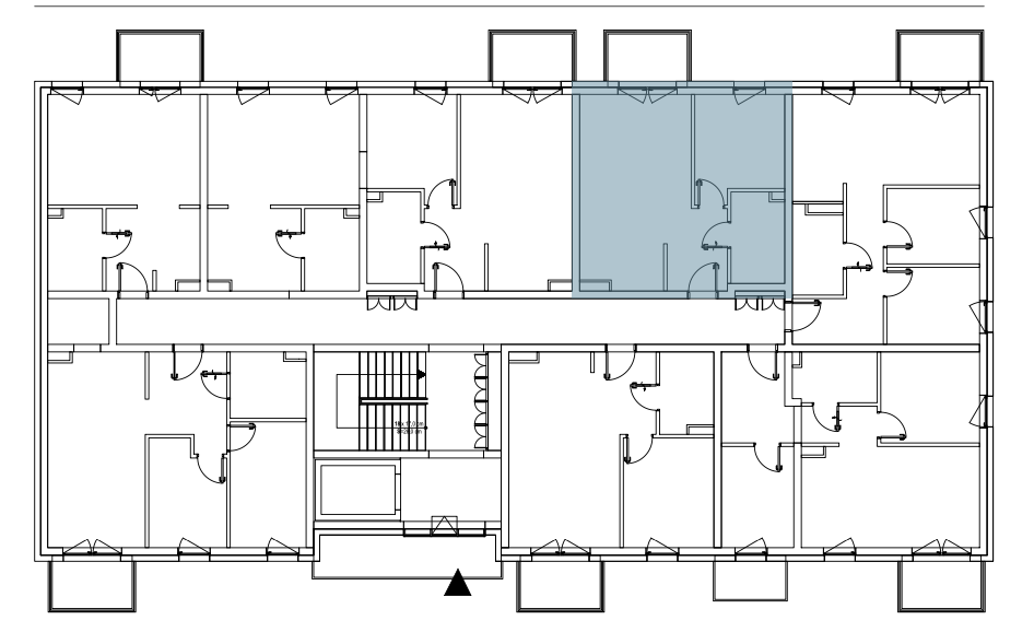
cena: 296 935 PLN, typ: sprzedaż, pokój/pokoi: 2, piętro/pięter: 1, region: Konin
Marzysz o idealnym miejscu do życia, które łączy komfort nowoczesności z urokiem natury? Z radością informujemy o rozpoczęciu rezerwacji mieszkań w nowej inwestycji deweloperskiej w malowniczym Kazimierzu Biskupim! Nasz budynek mieszkalny wielorodzinny położony jest w spokojnej części miejscowości, tuż obok urokliwych lasów. Oferujemy mieszkania o zróżnicowanej powierzchni, zaprojektowane z myślą o Twoich potrzebach. To idealne połączenie wyjątkowego designu i nowoczesnych rozwiązań technologicznych. W okolicy znajdziesz wszystko, czego potrzebujesz na co dzień - od różnorodnych sklepów, przez pocztę i aptekę, aż po liczne placówki edukacyjne. A wszystko to w promieniu zaledwie kilkuset metrów! Dodatkowe udogodnienia? Proszę bardzo! Mieszkania z windami, miejscami parkingowymi oraz komórkami lokatorskimi dla pierwszych kupujących. ECO budownictwo z nowoczesną pompą ciepła zadba o niskie koszty utrzymania i Twój komfort. Lokalizacja to kolejny atut - bliskość klasztoru, placu zabaw, zajezdni autobusowej, poradni lekarskiej oraz szkoły podstawowej sprawia, że wszystko masz pod ręką! Promocyjna cena 6990 zł za m² dla pierwszych mieszkań - oferta ograniczona czasowo i do wyczerpania zapasów! Dodatkowo, dla naszych pierwszych klientów: komórki lokatorskie w budynku z 50% bonifikatą! Pozostałe komórki lokatorskie będą dostępne na zewnątrz. Dodatkowo istnieje możliwość zakupu w pełni wykończonego i gotowego pod wynajem lub do zamieszkania mieszkania! Idealna propozycja dla tych, którzy cenią sobie komfort i wygodę. Nie czekaj! Zainwestuj w przyszłość i komfort swojego życia. Skontaktuj się z nami już dziś i zarezerwuj swoje wymarzone mieszkanie!
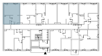
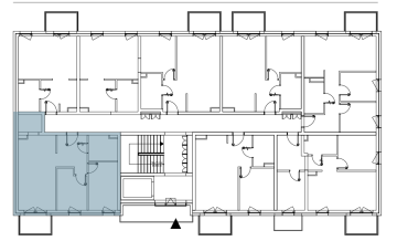
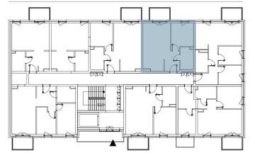
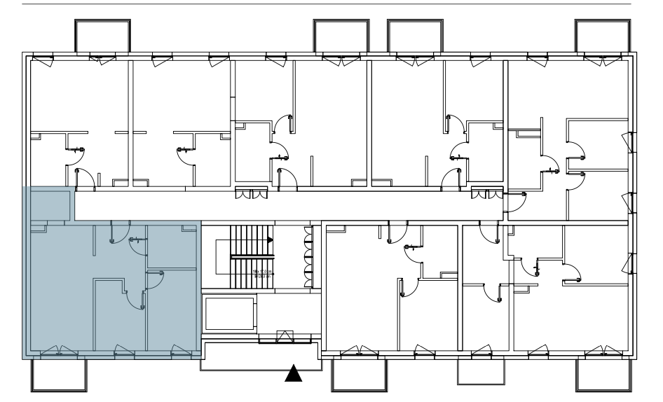
Galeria
Dane kontaktowe
Property Invest
698658907
Kazimierz Biskupi
Konin
Formularz kontaktowy
Inne ogłoszenia z tej kategorii
- 3pokoje z dużym ogródkiem - inwest ...
- 3 pokoje z poddaszem/parking - mie ...
- 3pokojowe mieszkanie z ogródkiem j ...
- 4 pokoje z ogrodem/ m.parkingowe/ ...
- 4 pokoje z poddaszem / parking / m ...
- Mieszkanie 3 pokojowe/ dwa balkony ...
- Mieszkanie 4 pokojowe o powierzchn ...
- Mieszkanie 2-pokojowe na sprzedaż, ...
- Inwestycja na sprzedaż 6 j. mieszk ...
- Nowe mieszkania w II etapie – Osie ...














