Inne nieruchomości
Ogłoszeń: 338
OFERTA SPRZEDAŻY – BUDYNEK KOMERCYJNY / INWESTYCYJNY Słupca
IP: 188.33.24.51Wyświetleń: 67
cena: 10 000 000 PLN, typ: sprzedaż, pokój/pokoi: 17, piętro/pięter: 1, region: Słupca
OFERTA SPRZEDAŻY – BUDYNEK KOMERCYJNY / INWESTYCYJNY
Słupca, ul. Matejki 9 (róg Browarnej)
⸻
???? Cena wyjściowa: 4 000 zł/m²
Powierzchnia całkowita: ok. 2 500 m²
➡️ Możliwość zakupu w ratach notarialnych
⸻
???? LOKALIZACJA
Nieruchomość położona w centrum Słupcy (powiat słupecki), przy ul. Matejki 9 – róg Browarnej.
W sąsiedztwie:
• Urząd Miasta i Starostwo Powiatowe,
• Dworzec PKS,
• Liceum Ogólnokształcące i Szkoła Podstawowa,
• sklepy, usługi i osiedla mieszkaniowe.
Doskonała lokalizacja – duże natężenie ruchu pieszego i samochodowego, świetna widoczność, szybki dojazd z każdej części miasta.
⸻
????️ PARAMETRY OBIEKTU
• Powierzchnia działki: ok. 1 500 m²
• Rok budowy: ok. 13 lat
• Stan techniczny: bardzo dobry
• Teren częściowo ogrodzony i wykostkowany
• Parking na 20–30 aut
• Podjazd dla osób niepełnosprawnych
• Zezwolenie energetyczne: 80 kW
• Wszystkie media: prąd, woda, kanalizacja, hydraulika, 5 kominów wentylacyjnych
⸻
???? ROZKŁAD POWIERZCHNI
Piwnica (ok. 500 m²)
Pomieszczenia: 22 m², 35 m², 55 m², 70 m², 250 m² – idealne na magazyny, archiwa lub garaże.
Parter (ok. 475 m²)
Lokale: 110 m², 125 m², 240 m² – doskonałe pod sklepy, apteki, biura lub punkty usługowe.
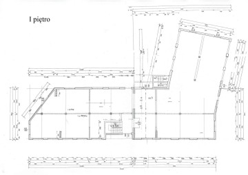
I piętro (ok. 700 m²) – możliwość dowolnego podziału.
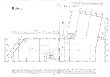
II piętro (ok. 700 m²) – możliwość dowolnego podziału.
Magazyn (200 m²) – 6 garaży.
⸻
???? PRZEZNACZENIE
Budynek pierwotnie przygotowany pod dom spokojnej starości, ale idealnie sprawdzi się także jako:
✅ budynek mieszkalny wielorodzinny,
✅ pasaż handlowy lub galeria,
✅ szpital, przychodnia, szkoła lub urząd,
✅ biurowiec / siedziba firmy,
✅ salon samochodowy lub sklep meblowy z witrynami,
✅ bank, korporacja, siłownia, centrum fitness lub SPA.
Każdy poziom może być zagospodarowany niezależnie – np. parter handlowy, piętro biurowe, a góra mieszkalna lub hotelowa.
⸻
???? DODATKOWE ATUTY
• Budynek w pełni uzbrojony, z kompletną infrastrukturą,
• Możliwość elastycznego podziału i łączenia l ...
Słupca, ul. Matejki 9 (róg Browarnej)
⸻
???? Cena wyjściowa: 4 000 zł/m²
Powierzchnia całkowita: ok. 2 500 m²
➡️ Możliwość zakupu w ratach notarialnych
⸻
???? LOKALIZACJA
Nieruchomość położona w centrum Słupcy (powiat słupecki), przy ul. Matejki 9 – róg Browarnej.
W sąsiedztwie:
• Urząd Miasta i Starostwo Powiatowe,
• Dworzec PKS,
• Liceum Ogólnokształcące i Szkoła Podstawowa,
• sklepy, usługi i osiedla mieszkaniowe.
Doskonała lokalizacja – duże natężenie ruchu pieszego i samochodowego, świetna widoczność, szybki dojazd z każdej części miasta.
⸻
????️ PARAMETRY OBIEKTU
• Powierzchnia działki: ok. 1 500 m²
• Rok budowy: ok. 13 lat
• Stan techniczny: bardzo dobry
• Teren częściowo ogrodzony i wykostkowany
• Parking na 20–30 aut
• Podjazd dla osób niepełnosprawnych
• Zezwolenie energetyczne: 80 kW
• Wszystkie media: prąd, woda, kanalizacja, hydraulika, 5 kominów wentylacyjnych
⸻
???? ROZKŁAD POWIERZCHNI
Piwnica (ok. 500 m²)
Pomieszczenia: 22 m², 35 m², 55 m², 70 m², 250 m² – idealne na magazyny, archiwa lub garaże.
Parter (ok. 475 m²)
Lokale: 110 m², 125 m², 240 m² – doskonałe pod sklepy, apteki, biura lub punkty usługowe.
I piętro (ok. 700 m²) – możliwość dowolnego podziału.
II piętro (ok. 700 m²) – możliwość dowolnego podziału.
Magazyn (200 m²) – 6 garaży.
⸻
???? PRZEZNACZENIE
Budynek pierwotnie przygotowany pod dom spokojnej starości, ale idealnie sprawdzi się także jako:
✅ budynek mieszkalny wielorodzinny,
✅ pasaż handlowy lub galeria,
✅ szpital, przychodnia, szkoła lub urząd,
✅ biurowiec / siedziba firmy,
✅ salon samochodowy lub sklep meblowy z witrynami,
✅ bank, korporacja, siłownia, centrum fitness lub SPA.
Każdy poziom może być zagospodarowany niezależnie – np. parter handlowy, piętro biurowe, a góra mieszkalna lub hotelowa.
⸻
???? DODATKOWE ATUTY
• Budynek w pełni uzbrojony, z kompletną infrastrukturą,
• Możliwość elastycznego podziału i łączenia l ...
Galeria
Dane kontaktowe
Renata Gwiazdeczka
603191333
Słupca
Słupca
Formularz kontaktowy
Inne ogłoszenia z tej kategorii
- Lokal handlowo - usługowy na sprze ...
- Konin 3-go Maja do wynajęcia
- Atrakcyjny teren inwestycyjny w ko ...
- Do wynajęcia lokal handlowo-usługo ...
- Do wynajęcia lokal biurowo-usługow ...
- Do wynajęcia lokal handlowo-usługo ...
- Umeblowany lokal usługowo -biurowy ...
- Obiekt komercyjny do wynajęcia, Ko ...
- Budynek handlowo-magazynowy, Golina
- Lokale do wynajęcia-Przemysłowa 9, ...









