Domy
Ogłoszeń: 548
Jedyna taka oferta!! Dwa domy z 40ar działką za 450000zł!!!
IP: 37.109.165.242Wyświetleń: 17
cena: 450 000 PLN, typ: sprzedaż, pokój/pokoi: 5, piętro/pięter: 2, region: Golina
Na sprzedaż działka o powierzchni 40 ar zabudowana dwoma domami!! Nieruchomość znajduje się w miejscowości Spławie, gm. Golina, powiat koniński, woj. Wielkoppolskie.
Pierwszy z domów to dom piętrowy z poddaszem użytkowym wybudowany w latach 2010-2016 o powierzchni użytkowej 108,43m2.
Na dole znajdują się:
- wiatrołap 2,88m2
- hall 12m2
- kuchnia 11,05m2
- salon z jadalnią 21,5m2
- wc 2m2
- pokój 9m2
- pom. gospodarcze 4,94m2
- taras 27,78m2.
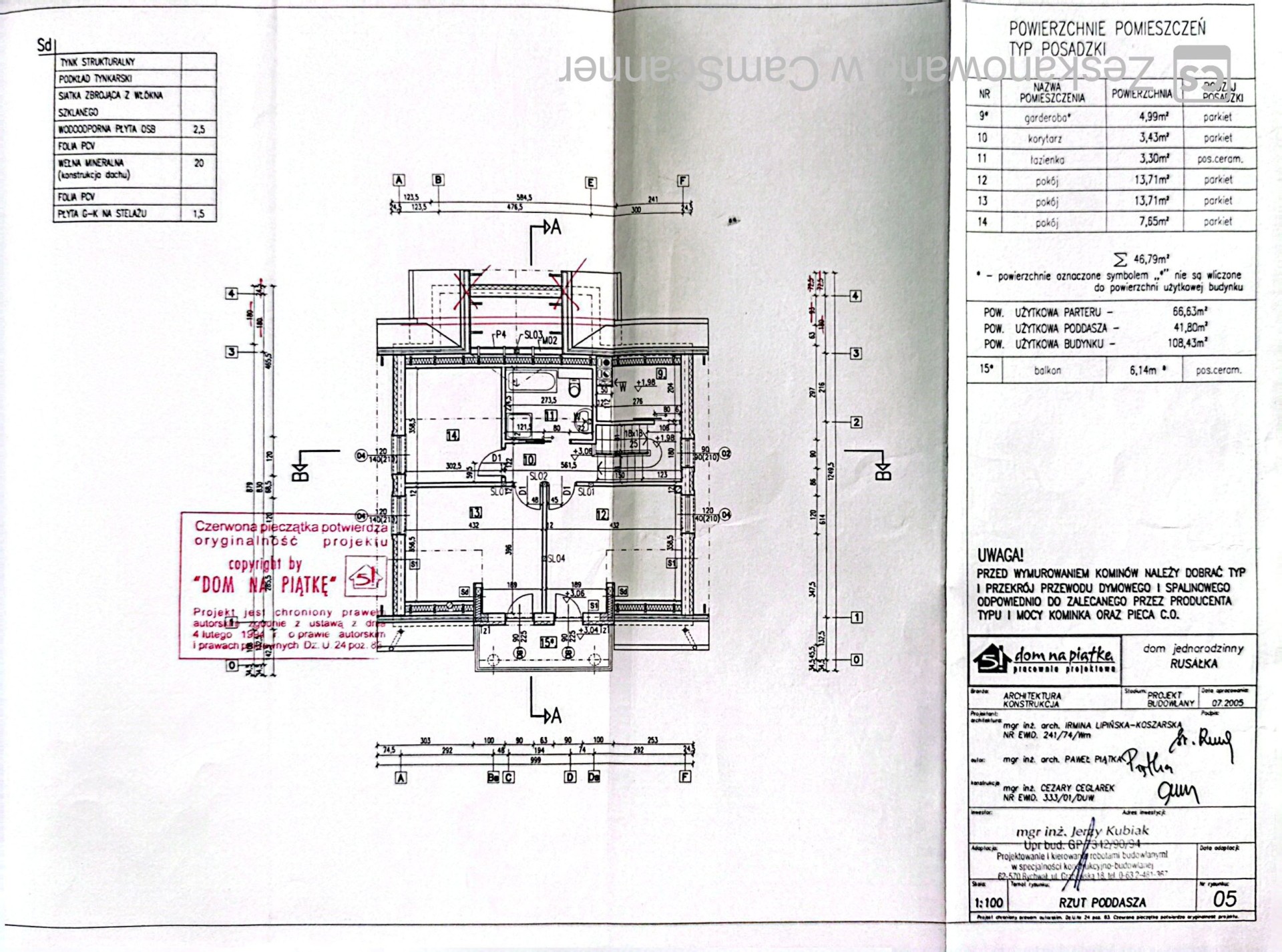
Poddasze użytkowe to:
- korytarz 3,43m2
- garderoba 4,99m2
- łazienka 3,30m2
- pokój 13,71m2
- pokój 13,71m2
- pokój 7,65m2
- balkon 6,14m2.
Dom wybudowany z pustaka ceramicznego POROTHERM 25X38, ocieplenie styropian 10, pokrycie dachu dwuspadowego- blachodachówka. Ogrzewanie podłogowe
Drugi dom to dom do remontu o powierzchni 75m2, składa się z trzech pokoi, kuchni i łazienki, zbudowany w technologii mieszanej- cegła, pustak , glina. Rok budowy to lata70-te. Okna PCV, dach dwuspadowy pokryty eternitem.
Media: wodociąg, kanalizacja, prąd, ogrzewanie- węglowe.
Cena 450 000 zł
Zapraszam do kontaktu oraz na prezentację.
Beata Piątkowska
nr licencji zawodowej 23427
tel. 666 01 57 75
e-mail: bpiatkowska. nieruchomosci.mega@gmail.com
Anna Kieliszkowska
tel. 668 339 777
e-mail : anna.nieruchomosci.mega@gmail.com
Treść ogłoszenia nie stanowi oferty handlowej w rozumieniu Kodeksu Cywilnego , ma jedynie charakter informacyjny.
Opis oferty zawarty na stronie internetowej sporządzony jest na podstawie informacji uzyskanych od właściciela.
Pierwszy z domów to dom piętrowy z poddaszem użytkowym wybudowany w latach 2010-2016 o powierzchni użytkowej 108,43m2.
Na dole znajdują się:
- wiatrołap 2,88m2
- hall 12m2
- kuchnia 11,05m2
- salon z jadalnią 21,5m2
- wc 2m2
- pokój 9m2
- pom. gospodarcze 4,94m2
- taras 27,78m2.
Poddasze użytkowe to:
- korytarz 3,43m2
- garderoba 4,99m2
- łazienka 3,30m2
- pokój 13,71m2
- pokój 13,71m2
- pokój 7,65m2
- balkon 6,14m2.
Dom wybudowany z pustaka ceramicznego POROTHERM 25X38, ocieplenie styropian 10, pokrycie dachu dwuspadowego- blachodachówka. Ogrzewanie podłogowe
Drugi dom to dom do remontu o powierzchni 75m2, składa się z trzech pokoi, kuchni i łazienki, zbudowany w technologii mieszanej- cegła, pustak , glina. Rok budowy to lata70-te. Okna PCV, dach dwuspadowy pokryty eternitem.
Media: wodociąg, kanalizacja, prąd, ogrzewanie- węglowe.
Cena 450 000 zł
Zapraszam do kontaktu oraz na prezentację.
Beata Piątkowska
nr licencji zawodowej 23427
tel. 666 01 57 75
e-mail: bpiatkowska. nieruchomosci.mega@gmail.com
Anna Kieliszkowska
tel. 668 339 777
e-mail : anna.nieruchomosci.mega@gmail.com
Treść ogłoszenia nie stanowi oferty handlowej w rozumieniu Kodeksu Cywilnego , ma jedynie charakter informacyjny.
Opis oferty zawarty na stronie internetowej sporządzony jest na podstawie informacji uzyskanych od właściciela.
Galeria
Dane kontaktowe
Beata Piątkowska
666015775
Golina
Formularz kontaktowy
Inne ogłoszenia z tej kategorii
- Parterowy dom w wysokim standardzi ...
- Wnętrze po generalnym remoncie – k ...
- Wyjątkowe gospodarstwo 6,47 ha | D ...
- Dom parterowy Branno gm. Rzgów + w ...
- Nowoczesny dom jednorodzinny
- Dom Modła Królewska gm St. Miasto
- Domy jednorodzinne Modła Królewska
- Dom na sprzedaż gm. Kazimierz Biskupi
- *** Nowoczesny dom blisko lasu – Ż ...
- Na sprzedaż dom , Sierniecze Małe, ...








